Curtis Residence

ChevyChase, MD

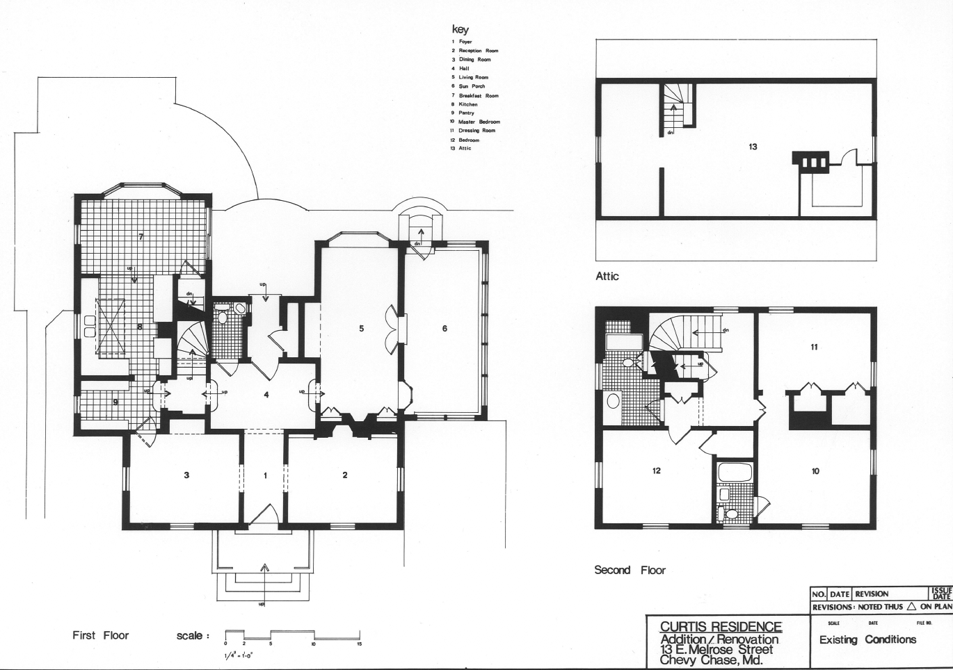
The clients, a couple in their sixties, acquired this small, turn-of-the century home in Chevy Chase, MD. After living in a farmhouse in northern Italy for fifteen years, they wanted to recreate its features on a quarter-acre lot, which included a new lap pool and pool/guest house. To accommodate their art and furniture collection, the design solution involved opening up all the walls on the first floor to create larger, more spacious rooms.  A new formal dining room was “inserted”, as well as excavating for a wine cellar, and the attic roof was raised to create a painting studio.